Úvod
O firmě
Reference
Fotogalerie
Kontakt
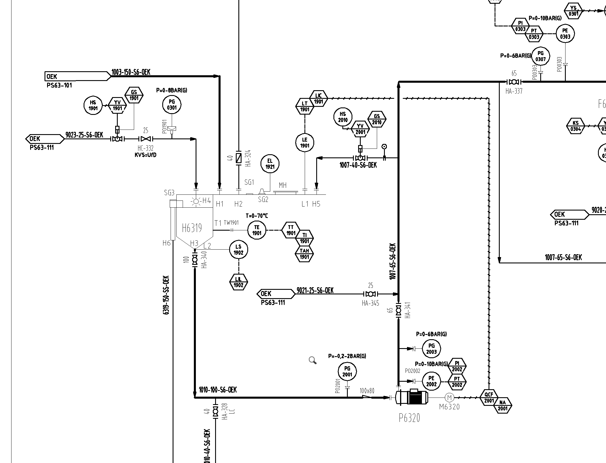
P&ID